UCLA School of Music Master Plan
UCLA School of Music Master Plan
UCLA School of Music Master Plan
UCLA School of Music Master Plan
UCLA School of Music Master Plan
UCLA School of Music Master Plan
UCLA School of Music Master Plan
UCLA School of Music Master Plan
UCLA School of Music Master Plan
UCLA School of Music Master Plan
UCLA School of Music Master Plan
UCLA School of Music Master Plan
UCLA School of Music Master Plan
UCLA School of Music Master Plan
UCLA School of Music Master Plan
UCLA School of Music Master Plan
UCLA School of Music Master Plan
UCLA School of Music Master Plan

UCLA School of Music Master Plan

Related Projects
  • ↗ UCLA Evelyn & Mo Ostin Music Center
  • Location Los Angeles, CA
  • Type Master Planning
  • Completion 2011
  • Client UCLA

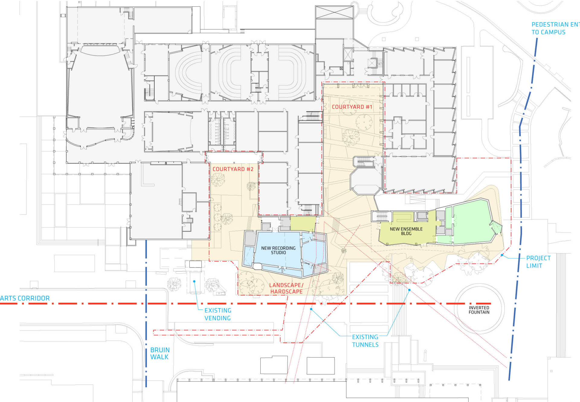
The music facilities at the UCLA Herb Alpert School of Music had been stretched to the limits by the demands of a growing and diverse program. kdA was hired to create a master plan to re-imagine and expand the spaces to support an integrated approach to the study of music. The School’s primary aim was to encourage porosity among the departments and facilitate collaboration among students and faculty. We began the process by searching for common threads and underlying traits in the programs of the three departments. We discovered a remarkable interdisciplinary educational agenda with the following themes: practice, performance, research, academia, social interaction, and an increasing use of technology.

Our solution was to create very specific, achievable buildings goals that also supported an expanding program, via a series of additions, subtractions, and modifications to the existing facilities that transformed the building into a dynamic complex that supports a new vision for music education at UCLA. This master plan identified a sequence, budget and program for the Music activities to “grow in place,” essentially building enough surge space to allow the program to move into newly constructed areas while existing areas were renovated as funding became available.

Some elements are invisible, such as the integration of a digital hub network for all spaces in the complex. Others were visible, including two dedicated, state-of-the-art performance rooms that allow the faculty and students to record, perform and broadcast to the campus and beyond. These latter spaces comprised part of the first phase of the master plan, the Evelyn & Mo Ostin Music Center, which was designed by kdA and completed in 2015.

  • All
  • Housing
  • Houses
  • Workplace
  • Public
  • Cultural
  • Education
  • Adaptive Reuse
  • Master Planning
  • Projects
  • Practice
  • News
  • About
  • Recognition
  • Careers
  • Contact

kdAkevin daly Architects

3617 Exposition Blvd
Los Angeles CA 90016

Miami FL

1 310 656 3180
info@kevindalyarchitects.com

  • Copyright and privacy policy
  • Firm Certifications
  • Menu Item

Newsletter


Website
Design by IN-FO.CO
Development by Camp Quiet