Material Innovation: ETFE

ArtCenter College of Design South Campus

UCLA Ostin Basketball Center

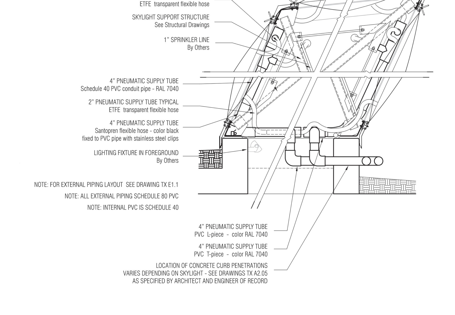
Designed for the ArtCenter College of Design South Campus, the skylight system is built of translucent ETFE films stretched on a custom-designed structural frame. Three thin printed layers of Foiltec (a Teflon-coated polymer) comprise the pillows within the structural frame. Via compressors these layers are inflated or deflated to adjust the amount of natural light and heat entering the building.

ETFE Closed

ETFE In Transition

ETFE Open

At the UCLA Ostin Basketball Center, each practice court is lit by three large clerestory windows created by the undulating roof. These windows are made up of ETFE cushions, a double-layer film that is inflated with air. The ETFE system has higher insulating properties and is lighter in weight than insulated glazing units, as well as being more economical, easily recyclable, and long-lasting,