Broadway Affordable Housing
Broadway Affordable Housing
Broadway Affordable Housing
Broadway Affordable Housing
Broadway Affordable Housing
Broadway Affordable Housing
Broadway Affordable Housing
Broadway Affordable Housing
Broadway Affordable Housing
Broadway Affordable Housing
Broadway Affordable Housing
Broadway Affordable Housing
Broadway Affordable Housing
Broadway Affordable Housing
Broadway Affordable Housing

Broadway Affordable Housing

News
↗ New look for affordable housing at 1217 14th Street in Santa Monica
↗ Putting design first: six social housing projects from around the world
↗ Broadway Affordable Housing Featured in Michael Webb’s Building Community: New Apartment Architecture
↗ Broadway Affordable Housing Wins National AIA Housing Award
Process
  • ↗ Models: Broadway Affordable Housing
Related Projects
  • ↗ Gramercy Senior Housing
  • ↗ Little Berkeley
  • ↗ Mammoth Lakes Affordable Housing
  • ↗ Tahiti Housing
  • ↗ UCSB San Joaquin Village Housing
  • Location Santa Monica, CA
  • Type Housing
  • Area 33,000SF
  • Completion 2012
  • Client Community Corporation of Santa Monica
Recognition
  • 2015 National AIA Honor Award
  • 2014 Westside Urban Forum Award
  • 2013 AIA CC Design Award
  • 2013 AIA Social Impact Design Award
  • 2013 American Architecture Award
Publications
  • Kevin Daly Architects builds a low-cost housing community in Santa Monica, dezeen (2015)
  • Ditch the car and the backyard: 5 lessons from 4 L.A. architects about L.A.’s future, LA Times (2015)
  • Award-Winning Residences Reshaping Ideas of Home, Dwell (2015)
  • Building of the Year, The Architect’s Newspaper (2014)
  • Block Party, Architectural Record (2013)
  • Architecture Adds an Upgrade to Affordable Housing in Santa Monica, LA Times (2013)

Developed by the Community Corporation of Santa Monica (CCSM), Broadway Affordable Housing addresses the housing needs of families earning 30-60% of the local median income. This was the second affordable housing project kdA worked on with CCSM, a local non-profit developer committed to building and operating infill housing that is environmentally and economically sustainable in Santa Monica.

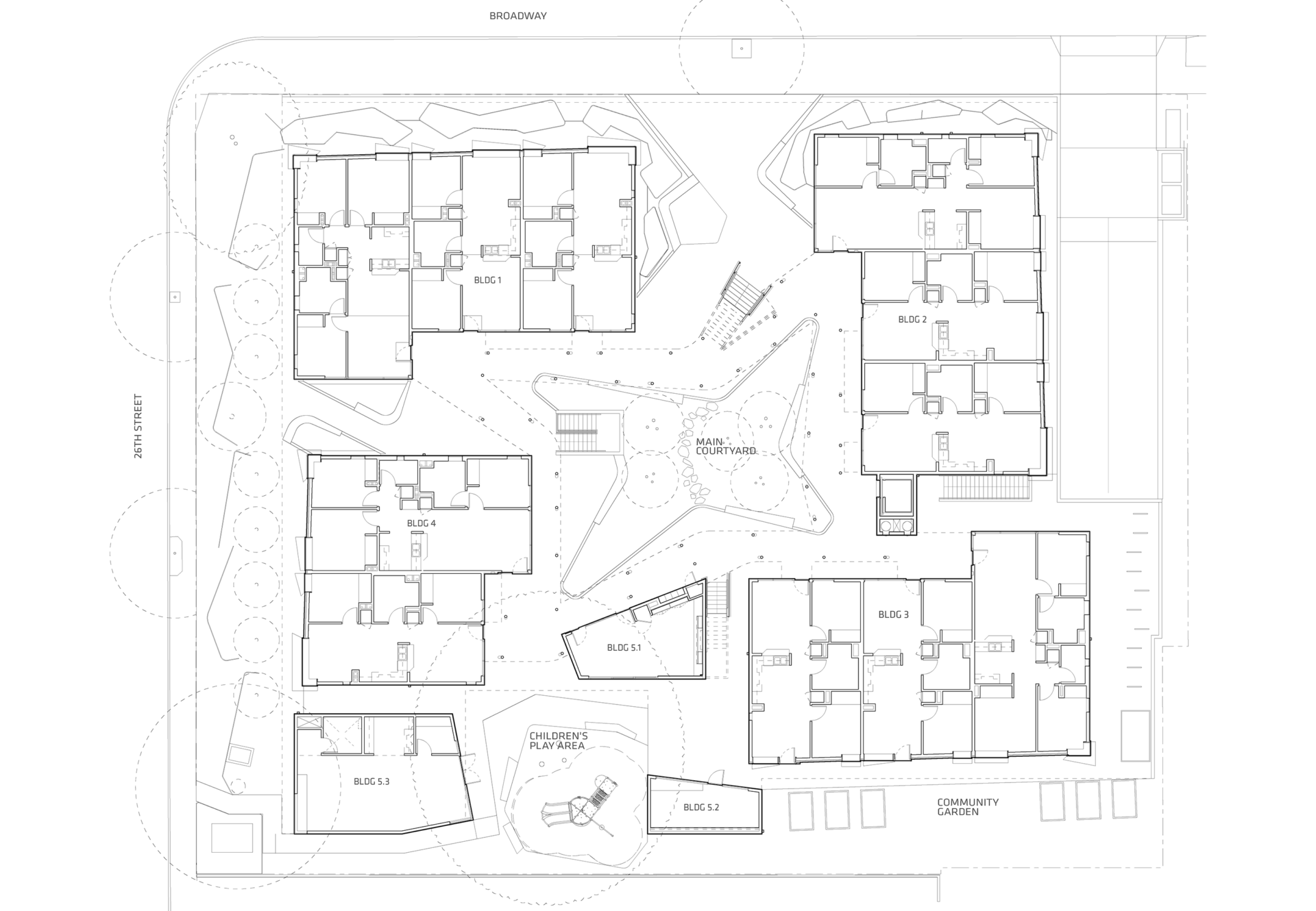
Sited across from a large community park and served by multiple transportation options, Broadway Affordable Housing clusters economical, repeatable housing blocks in a pinwheel configuration around the canopy of an existing shade tree. The complex replaced a vacant nursing home on a prominent corner lot in downtown Santa Monica with 33 two- and three-bedroom apartments and community facilities.

Site & Urban Context

The objective of Broadway Housing is to provide low income families with affordable housing that is both environmentally and economically sustainable in an urban area with a serious lack of available affordable housing options.

The primary population served by the project is low-income families earning between 30% and 60% of Area Median Income.  The property consists of 2- and 3-bedroom units with rents ranging from about $560 to $1,300 per month.  A market study was conducted to demonstrate the need for these units in the City.  The market study determined that there was a need for 7,931 2-bedroom units serving this income range and 6,725 3-bedroom units. As part of the design process, community meetings were held to get input on the design and building program.

The site planning for the project began with an effort to build around a mature exotic quinine tree; an arborist coordinated shoring locations and cable braced the tree to prevent construction damage. The interests of community groups opposed to tree removal were addressed by maintaining street trees beyond building setbacks. The site was engineered to capture all storm water and direct it to an underground 15,000 cistern. This effort was motivated in part by a desire to reduce irrigation demand, but as the project is only two miles from the coast, to minimize runoff from the site, thus passively supporting the natural environment.

Formal Architectural Strategy

The complex maximizes every corner of the 1.5-acre site. The four, three-story residential buildings are clustered around a starfish shaped internal courtyard with a play area and two fully wired community rooms at the rear. This community zone allows a safe environment for children to play and do homework, for adult residents to garden, and for classes to be held. Larger three-bedroom units are placed at the ground level. Two-bedroom units are placed on the upper levels and are connected by latticed bridges that envelope a central, shared courtyard. All the units face this central courtyard and every room in each unit has access to natural light and ventilation.

Building & Technology 

Buildings are clad in three different types of facades – window box, storefront, and slots. The courtyard facing facades have storefront glazing to maximize daylight. Exterior facing facades have ruled surfaces with a cement board rain screen and window boxes. The window boxes provide seating areas in bedrooms as well as emergency egress. Glazing in the boxes is shaded by powder coated aluminum window hoods derived from solar orientation studies, enabling the minimal use of systems to cool the buildings.

The project is designed to withstand the high use/low maintenance of affordable housing. A local chapter of Boys and Girls Club runs after school programs in the community rooms year round, requiring the materials to be both durable and performative: fiber based Tectum acoustical panels are integrated with environmental graphics to minimize echo and durable recycled cork/rubber flooring is run partially up the wall surfaces to provide a damage resistant wainscot around the room.

Sustainability

A number of sustainable techniques are incorporated into the design, from green roofs that insulate and slow runoff, custom window frames that protect units from solar heat gain, canted exterior walls in a rainscreen configuration, and a 15,000 gallon underground cistern that collects rain water for irrigation. As a result of smart planning and integrated sustainable design the thirty-three units do not have air conditioning yet remain a comfortable temperature throughout the year. A solar thermal hot water system reduces demand for energy, and photovoltaic panels provide sufficient power for common area usage.

Rainscreen detailing on elevations receiving the greatest amount of solar exposure provides natural ventilation between skin and structure. The geometry of the projecting window hoods is optimized to provide the greatest amount of sun protection based on orientation and time of day; when considered with the ventilated façade and the mild coastal climate, the buildings are able to remain self-sufficient for a majority of the year.

The garden like interior courtyard is configured as a sink of cool temperatures, with mature sycamore trees planted in a central planter that extends through the subterranean parking structure. Within several years these trees will form a shade canopy over the entire courtyard. The wooded trellis balustrade structure that rings the courtyard provides tenants with a level of privacy that encourages open windows toward the courtyard and natural ventilation through each apartment.

Recognition
  • 2015 National AIA Honor Award
  • 2014 Westside Urban Forum Award
  • 2013 AIA CC Design Award
  • 2013 AIA Social Impact Design Award
  • 2013 American Architecture Award
Publications
  • Kevin Daly Architects builds a low-cost housing community in Santa Monica, dezeen (2015)
  • Ditch the car and the backyard: 5 lessons from 4 L.A. architects about L.A.’s future, LA Times (2015)
  • Award-Winning Residences Reshaping Ideas of Home, Dwell (2015)
  • Building of the Year, The Architect’s Newspaper (2014)
  • Block Party, Architectural Record (2013)
  • Architecture Adds an Upgrade to Affordable Housing in Santa Monica, LA Times (2013)
All
  • Projects
  • Practice
  • News
  • About
  • Recognition
  • Careers
  • Contact

kdAkevin daly Architects

3617 Exposition Blvd
Los Angeles CA 90016

Miami FL

1 310 656 3180
info@kevindalyarchitects.com

  • Copyright and privacy policy
  • Firm Certifications
  • Menu Item

Newsletter


Website
Design by IN-FO.CO
Development by Camp Quiet