Camino Nuevo Middle School
Camino Nuevo Middle School
Camino Nuevo Middle School
Camino Nuevo Middle School
Camino Nuevo Middle School
Camino Nuevo Middle School
Camino Nuevo Middle School
Camino Nuevo Middle School
Camino Nuevo Middle School

Camino Nuevo Middle School

Transformative
  • ↗ Reclaiming Overlooked Urban Resources Camino Nuevo Charter Academy
Related Projects
  • ↗ Camino Nuevo Elementary
  • ↗ Camino Nuevo High School
  • Location Los Angeles, CA
  • Type Education
  • Area 14,000SF
  • Completion 2004
  • Client Pueblo Nuevo Development

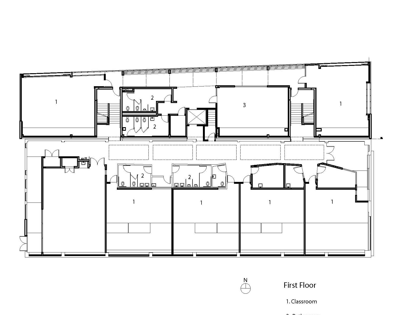
CNCA Middle School is the second building on the Camino Nuevo Charter Academy campus designed by kdA for the Pueblo Nuevo Development, a Los Angeles non-profit community investment organization founded by Dr. Philip Lance in 1993. Representing the continuation of the interrogation of normative building types began in the neighboring CNCA Elementary (which took an unfinished L-shaped mini mall and turned it into a 12-classroom elementary school), this project transformed a warehouse and abandoned dingbat office building into the second piece of what is now a thriving inner-city primary school campus.

CNCA Middle, along with CNCA Elementary, occupy the city block on Burlington Avenue between Seventh Street and Wilshire Avenue, near downtown Los Angeles. An intense planning effort by kdA resulted in the congregation of complementary activity spaces adjacent to one another.

The middle school is comprised of two parts: a converted warehouse building and an abandoned office building. The design and construction of the Middle School occurred in two phases. Phase I was the renovation of the 9,000SF bowstring truss warehouse building, repurposed to contain four classrooms, a cafeteria/multi-purpose room, restrooms, and an administrative area. An outdoor corridor is sculpted out of the warehouse space along the west property line to give each classroom natural light. This ‘alley’ is shared with the second part of the project, the previously abandoned office building.

The adjacent 18,000SF office building was renovated to house four additional classrooms (two on each floor), a science lab, arts space, and a community health center. Openings were punched into the wall that joins the two buildings along the open-air alley. In addition, the facade of the building is modified to allow natural daylight to enter through a scrim of perforated panels that line the exterior of the building.

  • All
  • Housing
  • Houses
  • Workplace
  • Public
  • Cultural
  • Education
  • Adaptive Reuse
  • Master Planning
  • Projects
  • Practice
  • News
  • About
  • Recognition
  • Careers
  • Contact

kdAkevin daly Architects

3617 Exposition Blvd
Los Angeles CA 90016

Miami FL

1 310 656 3180
info@kevindalyarchitects.com

  • Copyright and privacy policy
  • Firm Certifications
  • Menu Item

Newsletter


Website
Design by IN-FO.CO
Development by Camp Quiet