Mar Vista House
- Location Mar Vista, CA
- Type Houses
- Area 1,000SF
- Completion 1998
- 1997 AIALA Design Award
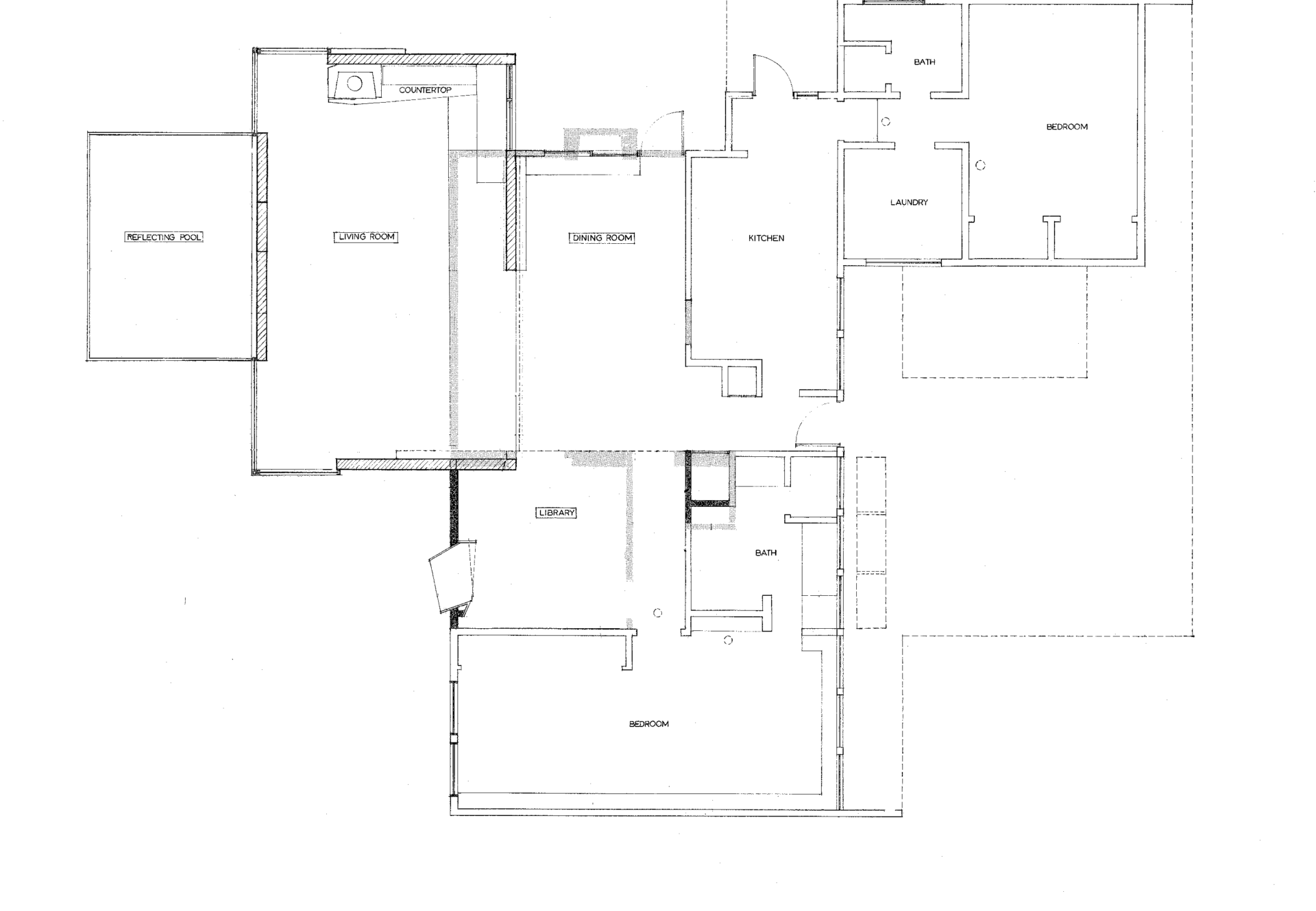
kdA created an addition to a small house in a neighborhood development designed by noted postwar architect Gregory Ain. Ain’s Mar Vista housing was a residential planning project that challenged assumptions about private property, public space, and the incorporation of landscape into building design. He arrayed each parcel in wide, shallow configurations bordered by lush landscape designed by Garrett Eckbo. To meet both the clients’ wishes and the narrow CC&R of the development, kdA designed a half-story light-filled gallery addition that would display the clients’ extensive textile collection without disrupting the housing codes of the development.
The shell of the new construction consists of four free-standing concrete blocks, each fourteen feet tall, that are open at the corners. To protect an elaborate collection of textiles, the upper perimeter of the building is wrapped in a translucent, two-layer polycarbonate glazing screen that filters light into the house. An automated roller blind prevents excess light from damaging the owner’s collection. The wood joist ceiling is finished with a layer of prefinished maple plywood and casts a soft, reflected light into the living spaces.
The link between the existing house and the new addition is marked by a pair of sliding plywood panels which serve as moveable displays for hanging textile storage as well as privacy screens. The retractable panels may be positioned into varying configurations, creating an ambiguous boundary between the new construction and the existing house.
Eckbo, in what turned out to be his final professional commission, placed a reflecting pool at the foot of the east-facing wall to cast morning sunlight onto the masonry walls. New patio surfaces extend the interior living areas into the verdant landscape, blurring boundaries between house and garden.
In 2017, two decades after the project was completed, the interior was used as a location in several scenes of the second season of HBO’s Insecure.
- 1997 AIALA Design Award
 
       
       
       
       
       
       
       
       
      